
Die imposanten historischen Gebäude wurden anspruchsvoll modernisiert und ermöglichen einen repräsentativen Firmenauftritt.
Die Hallengebäude stehen miteinander in Verbindung, können aber auch über drei Höfe separat erschlossen werden. Diese Anordnung garantiert große Flexibilität in der Nutzung und ermöglicht auch eine Aufteilung der Immobilie.
Die befestigte Freifläche im südlichen Grundstücksbereich ist durch den stationären Kran als Freilager gut geeignet. Alternativ ist hier auch ein Neubau möglich.
Verwaltung


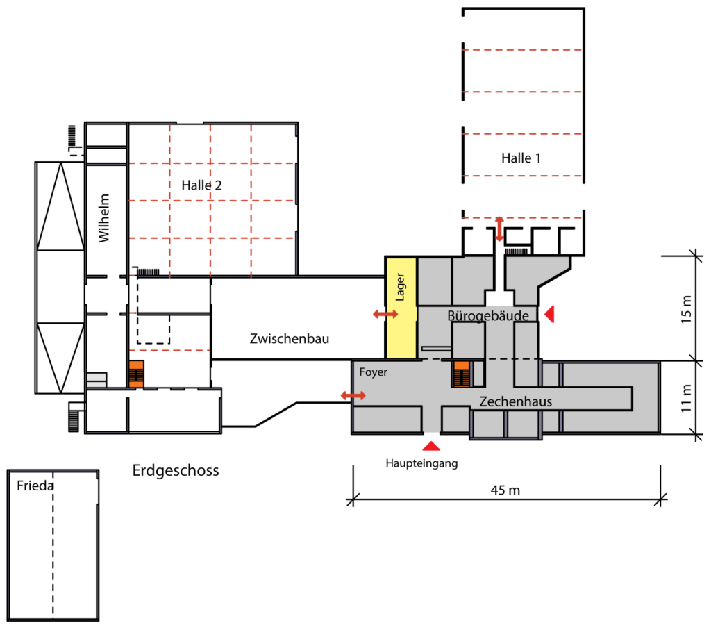
Zechenhaus ‚Wilhelm‚
Das Zechenhaus wurde 1990-1997 restauriert und in ein hochwertiges Bürogebäude umgewandelt. Die Büroflächen wurden um einen eingeschossigen Anbau mit Verbindung zur Halle 1 erweitert.
Wilhelm ist ein zweigeschossiger Winkelbau mit separaten Eingängen für EG und OG.
Im EG liegen Lagerflächen und Büroräume im OG mit Sozialräumen für ca. 30-40 Mitarbeiter.

| Erdgeschoß | 450 m² |
| Obergeschoß | 450 m² |
| Dachstudio | 100 m² |
| Neubau | 300 m² |
| EG (Lager- Werkstattbereich) | 370 m² |
| OG (Büro- und Sozialbereich) | 370 m² |
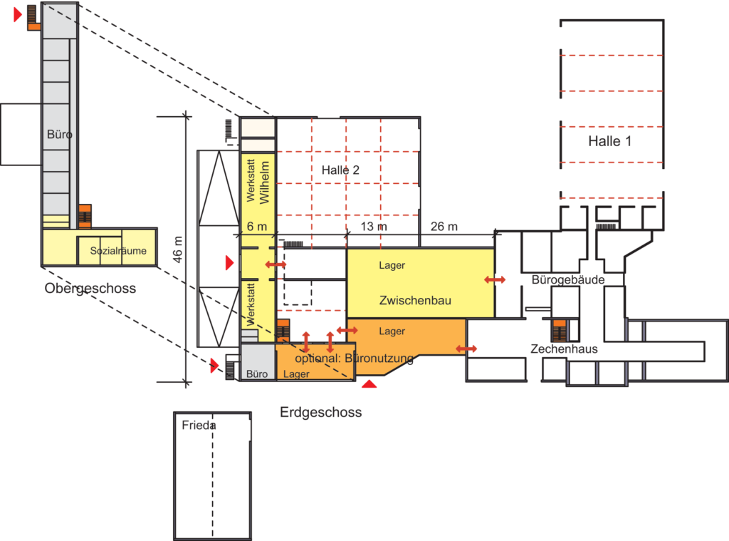
Hallenkomplex A


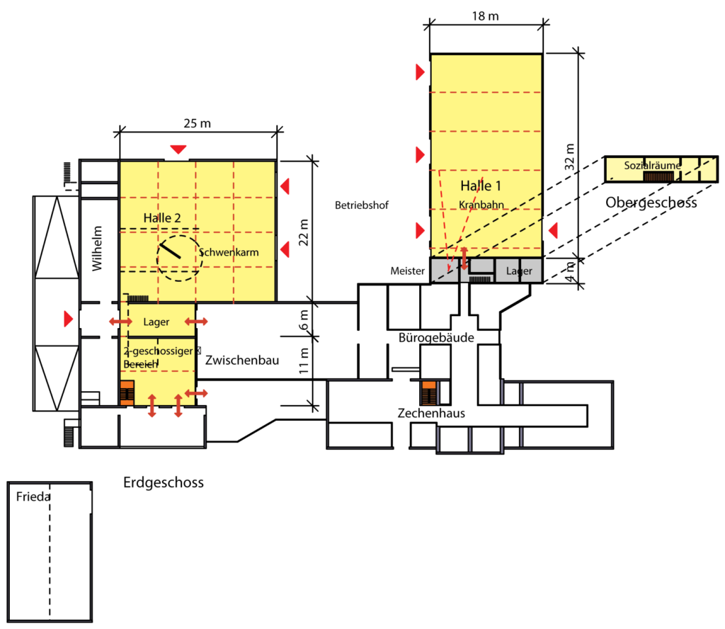
Halle 1
Der eingeschossige, ebenerdige Hallenbau schließt westlich an das Bürogebäude an.
Er hat kopfseitig eine zweigeschossige Nebenraumzone (Sanitärräume, Kantine).
Nutzfläche: 600 m²
Kranbahn: Einträgerlaufkran (Traglasten:1 x 5 to)
Lichte Hallenhöhe: 7,00 m, unter der Kranbahn: 6,00 m
Halle 2
Die Halle steht in direkter Verbindung zu den Bürogebäuden.
Nutzfläche: 550 m²
Lichte Höhe Werkstatt: ca. 5,00 m
Kleiner Einträgerlaufkran, 2 Schwenkkrane (je 1,0 to)
Zwischenbau
Das eingeschossige Gebäude mit eigenem Eingang verbindet „Wilhelm“ und Zechenhaus. Es kann als Lager, aber auch als Büro genutzt werden.
Nutzfläche: 680 m²
Hallenkomplex B

Halle 3, 4, 5
Die ehemaligen Fördermaschinenhäuser sind Sandsteinbauten aus der Kohleförderzeit und wurden teils aufwendig saniert.
Nutzfläche: je 300 m²
Lagerhalle 6, das ehemalige Umspannwerk kann zu einem hochwertigen Bürogebäude umgenutzt werden.








